Aktuelle byggepladser og vejarbejder
Her kan du læse om Ballerup Kommunes aktuelle projekter
Ønsker du at få indblik i aktuelle gravetilladelser i Ballerup Kommune, så klik her for at se kortet: Se kort
-
I forbindelse med Novafos råvandsprojekt, vil højre svingbanen være spærret frem til d. 1. maj 2026, hvor der ikke kan drejes til højre ud af Ballerup Byvej mod Ring IV.
-
Volden i midterrabatten sænkes. Dyr i volden har væltet jord ud på vejarealet og derfor ændres profilen for at hindre jord på vejarealet fremover.
Samtidigt renses det øverste lag for kvikgræs.
Arbejdet med at sænke volden og rense toplaget udføres i uge 11.
Entreprenøren afventer med at genså den flerårige urtebeplantning indtil der er mere styr på kvikgræsset.
Kvikgræs er et besværligt ukrudt som vil kvæle det andet urteopvækst og derfor skal vi have dette til livs.
I løbet af foråret og sommeren vil entreprenøren rense bedet for ny opvækst af Kvikgræs.
Tidsplan:
Marts - august 2026Entreprenør:
Iverde A/SBallerup Kommune:
Eventuelle spørgsmål til arbejdet vil kunne stilles til projektleder Yasmin van der Maal yasv@balk.dk -
Opdatering 30.04.2026
Arbejdet står stille pt pga af en fejl på en forsyningsledning, så byggeriet står stille de næste par uger.
Der forventes pt ingen forlængelse af byggeperiodenBallerup Kommune er i gang med at opsætte en ca. 485 meter lang støjskærm mellem Kornvænget og Ballerup Boulevard. Der etableres en 3 meter høj pilefletskærm fra Pilebyg, som på sigt vil blive beplantet med efeu (Hedera helix).
I samme ombæring forkortes højresvingsbanen med henblik på at placere støjskærmen så tæt på støjkilden som muligt.

Arbejdsproces
Arbejdet indledes med flytning af brønde, regulering af kantsten samt udgravning til stolpefundamenter. Herefter opstilles og nedstøbes stolperne. Betonfundamenterne skal efterfølgende hærde i 3–5 uger, hvorefter selve støjskærmene monteres.Støjgener
Arbejdet vil desværre medføre støj. Vi bestræber os på at begrænse generne mest muligt gennem valg af støjsvagt materiel og en hensigtsmæssig arbejdsgang. Vi beklager de gener, arbejdet måtte medføre.Tidsplan
25. februar – 1. juni
Tidsplanen er vejledende og kan ændre sig undervejs. For eksempel kan dårligt vejr i anlægsperioden medføre forsinkelser.Information om vejarbejdet
Eventuelle opdateringer og ændringer til vejarbejdet offentliggøres på ”Aktuelle byggepladser og vejarbejder” på kommunens hjemmeside:
www.ballerup.dk/byggepladserEntreprenør
Nordkysten A/SHar du spørgsmål, er du velkommen til at kontakte os
Projektleder: Christoffer Taxfeldt
E-mail: CHTA@balk.dk -
Ballerup Kommune er i gang med at fjerne kantstenen mellem p-lommerne og kørebanen for at forberede vejen til ny asfalt, når fjernvarmen er etableret. Arbejdet omfatter samtidig forbedret afvanding samt udskiftning af kloakdæksler.
Efterfølgende vil der blive udlagt midlertidig asfalt i p-lommerne (GAB). Det endelige slidlag udføres først, når fjernvarmen har etableret deres ledninger i området og arbejdet er afsluttet. Når slidlaget er etableret, vil der blive udført vejafmærkning, som tydeligt adskiller p-lommerne fra kørebanen.
Støj
Arbejdet vil desværre medføre støj. Vi bestræber os dog på at begrænse generne mest muligt gennem valg af støjsvagt materiel og hensigtsmæssig arbejdsgang. Vi beklager de gener, arbejdet måtte medføre.Tidsplan
Januar - martsTidsplanen er vejledende og kan ændre sig undervejs. For eksempel kan dårligt vejr i anlægsperioden forsinke arbejdet.
Om vej- og asfaltarbejdet
Evt. opdateringer og ændringer til vejarbejdet findes på ”Aktuelle byggepladser og vejarbejder” på vores hjemmeside via dette link: www.ballerup.dk/byggepladserEntreprenør
Gundsø Entreprenør Forretning A/SHar du spørgsmål, er du velkommen til at kontakte os
Projektleder: Fadi Chheiber
E-mail: fchh@balk.dk -
Udskiftning af belægningen og kantstenshævningen af hele fortovet på Schwenkestræde.
Tidsplan
Uge 47 - 3
Tidsplanen er kun vejledende, og der er forbehold for evt. ændringer. Er vejret dårligt i anlægsperioden, kan arbejdet blive forsinket.
Entreprenør
P.P. Brolægning
Spørgsmål til arbejdet?
Projektleder: Fadi Chheiber
E-mail: fchh@balk.dk
-
Udskiftning af fortovet på den østlige side af Bydammen, og videre til vestlige del af Hold-an Vej.
Tidsplan
Uge 47 - 3
Tidsplanen er kun vejledende, og der er forbehold for evt. ændringer. Er vejret dårligt i anlægsperioden, kan arbejdet blive forsinket.
Entreprenør
P.P. Brolægning
Spørgsmål til arbejdet?
Projektleder: Fadi Chheiber
E-mail: fchh@balk.dk
-
Opgravning og forstærkning af vejkassen langs Råmosevej, pga. de revnedannelser fra trafikken og især lastbilkørslen
Tidsplan
Uge 48 - 2
Tidsplanen er kun vejledende, og der er forbehold for evt. ændringer. Er vejret dårligt i anlægsperioden, kan arbejdet blive forsinket.
Entreprenør
Gundsø
Spørgsmål til arbejdet?
Projektleder: Fadi Chheiber
E-mail: fchh@balk.dk
-
Udskiftning af fortovet på Rolighedsvej samt renovering af overkørsler med kørebanefliser på den vestlige side.
Tidsplan
Uge 50 - 2
Tidsplanen er kun vejledende, og der er forbehold for evt. ændringer. Er vejret dårligt i anlægsperioden, kan arbejdet blive forsinket.
Entreprenør
KMR Entreprenør
Spørgsmål til arbejdet?
Projektleder: Fadi Chheiber
E-mail: fchh@balk.dk
-
Udskiftning af fortovet på Klausdalsbrovej strækning: (Lautrupparken– Hjorteengen).
Fortovet udskiftes fra SF-sten til københavnerfortov og adskilles fra cykelstien med brosten.

Tidsplan
Uge 48 - 52
Tidsplanen er kun vejledende, og der er forbehold for evt. ændringer. Er vejret dårligt i anlægsperioden, kan arbejdet blive forsinket.
Entreprenør
KMR Entreprenør
Spørgsmål til arbejdet?
Projektleder: Fadi Chheiber
E-mail: fchh@balk.dk
-
Vi udskifter den gamle træbro i parken til en azobé der har en levetid på ca. 50 år.

Tidsplan
Uge 49 - 3
Tidsplanen er kun vejledende, og der er forbehold for evt. ændringer. Er vejret dårligt i anlægsperioden, kan arbejdet blive forsinket.
Entreprenør
MT-Højgård A/S
Spørgsmål til arbejdet?
Projektleder: Fadi Chheiber
E-mail: fchh@balk.dk
-

De store, gamle lindetræer ved Møllen er en vigtig del af Ballerups grønne historie, og vi skønner, at de er omtrent 100 år gamle. Vi har testet jorden ved træerne, som viser sig at være komprimeret. Den komprimerede jord betyder, at træernes rødder mangler ilt.
På sigt vil den komprimerede jord og manglende ilt påvirke træernes stabilitet, vækst og sundhed. Derfor iværksætter kommunen en række tiltag for at sikre træernes deres sundhed, så de kan bevares for fremtiden.
Vi igangsætter tre tiltag for at bevare træerne:
- Drænrør: Vi borer drænrør ned i jorden rundt om træerne for at forbedre jorden og sikre, at jorden bliver iltrig igen. Så kan træerne danne nye rødder, da drænrørene er med til at forbedre luftcirkulationen omkring rødderne.
- Beskæring: Vi udfører en større beskæring af begge trækroner for at sikre træernes stabilitet, så de vil blive mindre udsat for kraftig blæst mv. Beskæringen bliver udført skånsomt og af certificerede træplejere.
- Stillads: Vi opsætter et midlertidigt stillads, der skal støtte træerne, imens de danner nye rødder. Vi fjerner stilladset, når træernes rodnet er stærke nok igen. Vi forventer, at det vil tage til tre til fem år, før træerne igen er stabile.
Alle tiltagene er med til at fremtidssikre lindetræerne og give dem bedre vækstbetingelser, så byens borgere fortsat kan nyde nogle af vores ældste træer i kommunen.
Tidsplan
Vi udfører jordforbedringen og beskæringsarbejdet i vinteren 2025. Herefter opsætter vi stilladsstøtten.
Vi fører løbende tilsyn med træernes trivsel, og vi vil i 2028 foretage en større undersøgelse af træernes rødder for at dokumentere, at jordforbedringen går som planlagt.
Har du spørgsmål, er du velkommen til at kontakte vores driftsteam:
Ballerup Kommune, Center for By og Miljø
E-mail: mt-driftteam@balk.dk
-
Der udføres renoveringsarbejde på broen ved krydset Rugvænget/Hold-an Vej i perioden tirsdag den 2. september til cirka slutningen af december 2025.
Arbejdet omfatter udskiftning af membranen på broen og afsluttes med etablering af ny brobelægning. Arbejdet udføres på hverdage i tidsrummet kl. 7.00–18.00.
I perioden indsnævres vejen, og arbejdet opdeles i to etaper:
Etape 1 (Uge 36 – uge 42)
- Trafikken afvikles i det sydlige spor som dobbeltrettet trafik.
- Det er tilladt at foretage venstre- og højresving i krydset samt ligeudkørsel for trafikken fra Rugvænget.
- For lastbiler og busser der skal ind på Rugvænget etableres en omkørselsrute via Kornvænget (tavler og pile bliver opsat i området).
- Movia-busser fra Hold-an Vej til Rugvænget er undtaget.

Etape 2 (Uge 43 – uge 51)
- Trafikken afvikles i det nordlige spor som dobbeltrettet trafik.
- Det er tilladt at foretage venstre- og højresving i krydset samt ligeudkørsel.
- For lastbiler og busser etableres en omkørselsrute via Kornvænget.
- Movia-busser fra Rugvænget til Hold-an Vej er undtaget.

Busdriften
I forbindelse med den midlertidige trafikafvikling vil servicebussen 834 køre den modsatte vej rundt i området.
Ændret rute:
Ballerup Boulevard – Hold-An Vej – Rugvænget – Bygvænget – Kornvænget – Hold-An Vej, hvorefter bussen fortsætter ad den normale rute.
Vi gør opmærksom på at, service bus 835 fortsat vil køre den normale rute uden ændringer.
Støj
Arbejdet vil desværre medføre støj. Vi bestræber os dog på at begrænse generne mest muligt gennem valg af støjsvagt materiel og hensigtsmæssig arbejdsgang. Vi beklager de gener, arbejdet måtte medføre.
Tidsplan
Tidsplanen er vejledende og kan ændre sig undervejs. For eksempel kan dårligt vejr i anlægsperioden forsinke arbejdet.
Om vej- og asfaltarbejdet
Evt. opdateringer og ændringer til vejarbejdet findes på ”Aktuelle byggepladser og vejarbejder” på vores hjemmeside via dette link: www.ballerup.dk/byggepladser
Entreprenør
MT Højgård A/S
Har du spørgsmål, er du velkommen til at kontakte os
Projektleder: Fadi Chheiber
E-mail: fchh@balk.dk
-


Efter en omfattende bygningsrenovering i Børnehuset Kirstinevang opdaterer vi nu institutionens udearealer.
Projektet omfatter hele udearealet bag bygningerne og inkluderer både vuggestue- og børnehaveområdet. Vi ændrer ikke på det naturlige areal langs banen samt institutionens forareal, men disse arealer kan blive midlertidigt påvirket af anlægsarbejdet.
I udviklingen af den nye legeplads er der lagt særlig vægt på, at børnegruppen er varieret både sprogligt og motorisk. Derfor skaber vi mange små legemiljøer med tydelig zoneopdeling og gennemgående temaer, der understøtter børnenes sprogudvikling og skaber en visuel referenceramme for deres leg. De tydelige strukturer gør legepladsen lettere for børnene at aflæse og giver bedre mulighed for dialog og fælles udforskning.
Samlet set vil renoveringen forbedre legepladsens kvalitet markant og skabe et inspirerende, funktionelt og udviklende uderum for alle børn i Børnehuset
Påvirkning af trafikale forhold
Vi forventer minimal påvirkning af trafikken omkring børnehuset under anlægsarbejdet, da det udføres etapevis. Der kan dog opstå perioder med aflæsning af materialer, parkerede varevogne og midlertidig opmagasinering af redskaber, som i enkelte tilfælde kan påvirke hente- og bringesituationen let.Der vil så vidt muligt blive taget hensyn til de travle hente- og bringetidspunkter.
Tidsplan
Vi udfører anlægsarbejdet i tre faser, så arealerne løbende kan tages i brug, og børnenes udearealer begrænses i kortest mulig tid.Vuggestuens legeplads vil være den første del af børnehusets udearealer, som vil være klar til brug.
Vi forventer at alle udearealer er færdige og klar til leg i løbet af foråret 2026.
Bygherre
Ballerup KommuneEntreprenør
Kompan A/SSpørgsmål til projektet
Ved spørgsmål til projektet og anlægsarbejdet kan projektleder Sofie Rejkjær Bülow kontaktes på sobl@balk.dk. -

Forbindelsesgang med vægt på lysindfald mellem bygningerne i Kornblomsten med plads til leg og bevægelse.I dette projektet omdanner vi Kornblomsten fra tre institutioner til ét samlet børnehus for børn i vuggestue- og børnehavealderen. Tidligere lå der en fritidsordning i Kornblomsten, som nu er fraflyttet i foråret 2025. I stedet for skal Kornblomsten huse fem vuggestuegrupper og fem børnehavegrupper. Se flere billeder nedenfor.
Ændringer ved renoveringen
Udover en renovering af inde- og udearealerne udvider vi Kornblomsten med:- 1 nyt hus med grupperum, puslerum og garderobe, så der i alt er 10 grupperum
- 2 liggehaller
- 2 opvarmede forbindelsesgange, som forbinder alle bygninger på tværs for at optimere flowet i bygningen og sikre at maden til børnene kan leveres uden brug af termokasser
- Tilbygning med produktionskøkken + servicefaciliteter
Trafikgener
Vi forventer ingen nævneværdige trafikgener, mens arbejdet står på. Dog kan der i få tilfælde forekomme større køretøjer eller levering af materialer ved matriklen, som vil ophøre, så snart ærindet er afsluttet.Tidsplan
Projektet gik i gang i juni 2025, og vi forventer, at det bliver afsluttet i slutningen af 2026.Bygherre
Ballerup KommuneEntreprenør
Adserballe & Knudsen A/SProjektleder
Kontakt projektleder Mustafa Yasar på telefon +45 2422 7981 eller mail muya@balk.dk, hvis du har spørgsmål til projektet.
Stort fællesrum med plads til leg og bevægelse samt samvær på tværs.

Oversigt over den samlede institution med forbindelsesgange og nye rum mv.
-
Anlægning af nye vandrør fra Novafos
Projektet er desværre blevet forsinket, NOVAFOS forventer det færdigt ved udgangen af marts, alt efter vejr og vind.
Ballerup Byvej:
Der arbejdes på lukning af huller fra Ring IV og frem til Mailmparken, forventes det at afspærringen langs Ballerup Byvej kan fjernes helt i starten af uge 7.
Arbejdet foran Shell Tanken er desværre blevet stoppet, grundet jorden muligvis er forurenet. NCC og NOVAFOS har i gang sat en miljøundersøgelse.
Arbejdet fra Vestbuen til Hold-An Vej vil først være færdig i ultimo marts, da det nye og gamle anlæg skal kobles sammen i krydset v. Vestbuen.
Arbejdet fra Hold-An Vej og frem til Ring IV afventer der bliver koblet om fra gamle til nye rør, samt alle borehullerne bliver lukket og der bliver udlagt asfalt på cykelstien. Dette afventer vejret bliver varmere, så der kan udlægges asfalt (mindst 3 – 5 grader).
Der vil blive åbnet i 2 spor, lige så snart det er muligt.
Hold-An Vej (Øst siden)
Der afventes vejret bliver varmere, så der kan udlægges asfalt (mindst 3 – 5 grader)
Skovvej:
Det forventes at der er klar til udlægning af asfalt i uge 6, men der afventes vejret bliver varmere, så der kan udlægges asfalt (mindst 3 – 5 grader).
Lautrupparken:
Der er opstartet 2 boringer i uge 5 og forventes færdig i uge 7, fra den vestlige side mod øst.
Lautrupvang:
Her skal der graves på tværs af vejen, hvilket bevirker der laves indkørsel forbudt fra Ballerup Byvej og op af Lautrupvang. Der bliver dog holdt åbent for gående, cyklister og busser.
Arbejdet forventes udført over en periode på 3 uger, gerne fra slut januar/start februar hvis muligt.
Tidsplanen er vejledende, og der kan forekomme ændringer.
Dårligt vejr kan forsinke arbejdet.
Det betyder det for dig:
- Der vil være trafikale ændringer på ovenstående strækninger og der vil i perioder skulle forventes længere rejsetid
- Hastigheden er på mange af strækningerne af vejarbejdet, nedsat til 50 km/t
- Der vil være ændringer i de trafikale forhold for både gående og cyklister
Befolkningen i Ballerup og kommunerne omkring vokser, og det samme gør behovet for drikkevand. Det er baggrunden for, at Novafos er i gang med at opføre et nyt og moderne vandværk i erhvervsområdet Lautrupvang. Vandværket er en del af en større forsyningsplan, der skal sikre, at Novafos til hver en tid kan levere tilstrækkeligt med rent drikkevand til dig og din familie. Fra kildepladser flere steder i Ballerup skal grundvandet i rør i jorden føres ind til vandværket, hvor det bliver filtreret og iltet, før du kan bruge det til dit morgenbad og din aftenkaffe.
På kortet kan du se, hvor vi skal arbejde. Arbejdet koordineres med et andet projekt i området, så du forstyrres mindst muligt af maskiner og larm. Der kan dog forventes støj fra maskiner i tidsrummet kl. 7-18, som er den normale arbejdstid for bygge- og anlægsarbejder.
Vi tilrettelægger arbejdet med fokus på, at både cyklister og fodgængere bliver ledt sikkert forbi arbejdsområdet. En mindre del af vores arbejde foregår i Damgårdsparken ved Ballerup Rådhus, og her vil der i en kortere periode være reduceret adgang til nogle af parkens stier. Der vil alle steder være skiltet i forbindelse med arbejdsområderne, så det er muligt at orientere sig.
Fra december 2024 til november 2025 (Forsinket) anlægger Novafos nye vandrør.
Befolkningen i Ballerup og kommunerne omkring vokser, og det samme gør behovet for drikkevand. Det er baggrunden for, at Novafos er i gang med at opføre et nyt og moderne vandværk i erhvervsområdet Lautrupvang. Vandværket er en del af en større forsyningsplan, der skal sikre, at Novafos til hver en tid kan levere tilstrækkeligt med rent drikkevand til dig og din familie. Fra kildepladser flere steder i Ballerup skal grundvandet i rør i jorden føres ind til vandværket, hvor det bliver filtreret og iltet, før du kan bruge det til dit morgenbad og din aftenkaffe.
På kortet kan du se, hvor vi skal arbejde. Arbejdet koordineres med et andet projekt i området, så du forstyrres mindst muligt af maskiner og larm. Der kan dog forventes støj fra maskiner i tidsrummet kl. 7-18, som er den normale arbejdstid for bygge- og anlægsarbejder.
Vi tilrettelægger arbejdet med fokus på, at både cyklister og fodgængere bliver ledt sikkert forbi arbejdsområdet. En mindre del af vores arbejde foregår i Damgårdsparken ved Ballerup Rådhus, og her vil der i en kortere periode være reduceret adgang til nogle af parkens stier. Der vil alle steder være skiltet i forbindelse med arbejdsområderne, så det er muligt at orientere sig.
Kontakt
e-mail: trafikoganlaeg@balk.dk
-
Ballerup Kommune anlægger i samarbejde med Novafos en offentlig park med mulighed for friluftsaktiviteter, ophold og leg. Samtidig anlægges parken således, at den kan håndtere kraftige regnvandshændelser. Parken vil også rumme en mere naturlig æstetik, end den vi kender fra den klassiske bypark.
Parken etableres på den tidligere Baltorpplæne med Baltoppen Live, Next og TEC og de øvrige nye bebyggelser i Parkkvarteret som ramme herfor.
På nedenstående link beskrives projektet mere detaljeret, og der bliver løbende opdateret.
https://ballerup.dk/baltorpplaenen#paragraph-48216Tidsplan
Maj 2025 til juli 2026Bygherre
Ballerup kommuneEntreprenør
Møllerløkkegaard A/SSpørgsmål til arbejdet
Projektleder Yasmin van der Maal
klimparken@balk.dk -
Ordblindeinstituttet (hjemmeside: www.oi.dk) skal som en del af en større rokade flytte ind på Parkskolen på Gl. Rådhusvej 13, 2750 Ballerup. Derfor ombygger vi Parkskolens nordfløj til indflytning af Ordblindeinstituttet.
Flere fællesskaber på Parkskolen
Vi indretter en ny fælles administration for Ballerup Ungdomsskole (BASK) og Bamuk (Ballerup musikskole) i stueetagen i østfløjen. Og Parkskolens brugere vil fremover deles om både de eksisterende og nye funktioner, og det betyder, at huset kan være aktivt i flere af døgnets timer på sigt. Det vil gøre huset levende og skabe større tryghed i udearealerne.Derudover indretter vi skolegården på ny, mens vi ogsåændrer parkerings- og tilkørselsforholdene til skolen.
Fremtidig parkering
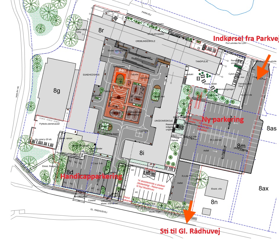
Vi fjerner parkeringsmulighederne fra gårdrummet for at give plads til fysisk bevægelse og ophold. Parkeringspladserne bliver genetableret med en stor parkeringsplads øst for Parkskolen med indkørsel fra Parkvej og en ny handicapparkeringsplads syd for skolen med indkørsel fra Gl. Rådhusvej.
Status marts 2026
Fra mandag d. 16. marts lukker vi for indkørsel til skolegården. Kun køretøjer, der har lovligt ærinde på byggepladsen kan køre ind.Sundhedshusets brugere samt brugere af salene bedes benytte indgangen markeret med rød pil på billedet nedenfor. Dårligt gående og andre brugere med behov for handicapadgang kan benytte Indgang A.
Entreprenørerne på pladsen benytter den del af den nye p-plads, som ligger længst fra Gl. Rådhusvej, så flest mulige pladser tættest på Gl. Rådhusvej friholdes til Sundhedshusets brugere.
Adgang til Musikskolen er gennem indgang G.
Status pr. 5. marts 2026
I den kommende uge vil der blive påbegyndt støjende arbejde i skolegården, da der vil blive skåret op i asfalten rundt langs facaden. Vi forventer, at arbejdere starter mandag den 9. marts og varer ugen ud. Det vil i dette tidsrum stadig være muligt at færdes i gården.Stueetagen i musikskolen ved at blive afsluttet. Håndværkerne er for tiden ved at udføre de sidste oprettende arbejder i denne og den kommende uge, hvorefter lokalerne kan tages i brug.
Status pr. 26. januar 2026
Administrationsbygningen er taget i brug efter juleferien i 2025. Det videre arbejde i fløjen i stueetagen, hvor BAMUK og Ungdomsskolen får lokaler, er godt på vej, og vi forventer fortsat, at lokalerne er klar til at blive taget i brug i starten af marts måned.Vi er stadig i gang med at grave og støbe i skolegården samt bygge om inde i bygningen.
Vi forventer ingen særligt støjende arbejder i de kommende uger.
Status pr. 17. december 2025
Den nye plads til handicapparkering ud mod Gl. Rådhusvej er nu åbnet og taget i brug.
De nyindrettede lokaler i i stueetagen ud mod Gl. Rådhusvej forventer vi klar inden juleferien. Dermed kan BAMUK´s administration flytte tilbage fra de midlertidige kontorer til de nyindrettede lokaler efter nytår.
Status pr. 17. november 2025
Eventuelle støjgener
Vi udfører forsat grave- og støbearbejde i skolegården samt byggearbejde inde på Parkskolen. Vi forventer ingen særligt støjende arbejder i de kommende uger.Parkering øst for Parkskolen
Vi åbnede den nye parkeringsplads øst for Parkskolen i oktober. Vi arbejder på at få opsat belysning og skiltning. Når skiltene er blevet godkendt af politiet, bliver de sat op. I løbet af de kommende uger etablerer vi to ramper op til fortovet, og vi viser med markeringer på asfalten, hvordan du som gående kommer fra parkeringspladsen til Parkskolen.Vi kommer til at etablere flere parkeringspladser på denne parkeringsplads senere.
Handicapparkeringspladsen ud mod Gl. Rådhusvej
Den nye, udvidede handicapparkeringsplads er ved at blive asfalteret. Vi forventer, at vi kan lave markeringer til parkeringsbåsene i løbet af uge 47, hvis vejret tillader det. Derefter kan du bruge handicapparkeringspladsen.Vi får også snart etableret stier for gående fra handicapparkeringspladsen til Parkskolen.
Når den nye handicapparkeringsplads er åbnet, og stierne til gående er færdige, lukker vi for kørselsadgangen til skolegården.
Nyt cykelskur foran Sundhedshuset
Det nye cykelskur foran Sundhedshuset er bygget færdigt. Vi opsætter snart lys på cykelparkeringen foran, så det bliver lettere at orientere sig i de mørke måneder på året.Musikskolens administrationslokaler
Tidsplanen for færdiggørelse af Musikskolens nye administrationslokaler følges, og vi forventer fortsat, at medarbejderne kan komme på plads i de nye lokaler op til jul.Status pr. 1. oktober 2025
Den store nye parkeringsplads øst for Parksolen åbner mandag den 6. oktober. Der er cirka 50 pladser, så det skulle gerne aflaste nærområdet i forhold til parkering i dagtimerne.Vi har etableret en gangsti ud fra parkeringspladsen ud til Gl. Rådhusvej. Stien kan også bruges af kørestolsbrugere. Når byggepladsen til sidst bliver fjernet, vil det permanente fortov fra parkeringspladsen blive lavet.
Arbejdet med den nye handicapparkeringsplads ud mod Gl. Rådhusvej forløber planmæssigt. Vi forventer at åbne den med udgangen af oktober. Når den er klar, vil parkering og afsætning i gården blive lukket med rimeligt varsel.
Status pr. 9. september 2025
De mest støjende dele af nedrivningsarbejdet på Parkskolen er nu afsluttet. I løbet af de næste måneder fortsætter vi med at ombygge, og vi forventer en del mindre støj i den forbindelse.Der er konstateret fund af asbest i nogle lokaler i østfløjen. Det er blevet håndteret efter reglerne, og vi er ved at afslutte en fuld oprensning i lokalerne. Vi har stræbt efter at udføre asbestsaneringen på så kort tid som muligt, dog har musikskolens drift været påvirket.
Parkering
Se billede nedenfor. Vi forventer, at den store nye parkeringsplads øst for Parkskolen står færdig med udgangen af september 2025. Parkeringspladsen har indkørsel fra Parkvej. Når parkeringspladsen er færdig, lukker vi for parkering af almindelige biler inde i skolegården med henvisning til den nye parkeringsplads.I en kort periode bibeholder vi to handicapparkeringspladser inde i skolegården samt mulighed for afsætning af passagerer. Inden udgangen af oktober måned forventer vi at tage den nye handicapparkeringsplads med indkørsel fra Gl. Rådhusvej syd for skolen i brug. Her vil være syv handicappladser samt tre handicapbuspladser. Når parkeringspladsen er taget i brug, lukker vi gården for indkørsel af alle køretøjer - undtaget byggepladstrafik i ombygningsperioden.
Tidsplan
April 2025 til sommeren 2026Bygherre
Ballerup Kommune, Center for EjendommeHovedentreprenør
Rydendahl A/SSpørgsmål til projektet
Kontakt projektleder Kristine Sørensen
krs1@balk.dk -

Nu starter byggepladsen op på Præstevænget, hvor Plejehjem Toftehaven udvides
Første skridt er bygning af tre nye boliger og en forbindelsesgang. Der vil blive etableret 48 nye plejeboliger med tilhørende fællesarealer og servicearealer.Byggeriet indgår i Ballerup Kommunes planer for udvidelse af kapaciteten på plejecenterområdet.
Tidsplan
Vi forventer, at de tre boliger m.m. er færdige udvendigt i august/september måned 2025, og at de er klar til indflytning den 1. januar 2026. De 48 boliger forventer vi at gå igang med sent forår 2026 med afslutning og indflytning sidst på året i 2027.Bygherre
Boligselskabet BaldersboSpørgsmål til arbejdet
Projektleder Karsten Schrøder
ksc@balk.dk
Klik her og læs mere om projektet på Baldersbos hjemmeside
-

Billedet viser, hvordan rådhuset kommer til at se ud efter vinduesudskiftningen. Vinduerne på Ballerup rådhus er nedslidte, og vi er derfor gået i gang med at udskifte dem.
Vi laver en vinduesløsning med naturlig ventilation. Via drivtryk vil den naturlig ventilation bidrage til nedkøling af bygningen uden brug af køleanlæg. Den nye vinduesventilationsløsning vil fungere i kombination med det eksisterende ventilationsanlæg, der sørger for luftskifte overalt i bygningen løbende.
Tidsplan
Maj til december 2025Bygherre
Ballerup KommuneEntreprenør
Eiler Thomsen
CVR: 12843747Projektleder
Kontakt projektleder Anne Marie Jørgensen på mail ajr1@balk.dk, hvis du har spørgsmål til projektet. -
Udskiftning af fortovet på Måløv Parkvej (Måløvgårdsvej – Måløv Byvej)
Fortovet udskiftes fra SF-sten til københavner fortov og adskilles med brosten.

Tidsplan
Uge 48 - 52
Tidsplanen er kun vejledende, og der er forbehold for evt. ændringer. Er vejret dårligt i anlægsperioden, kan arbejdet blive forsinket.
Entreprenør
P.P. Brolægning
Spørgsmål til arbejdet?
Projektleder: Fadi Chheiber
E-mail: fchh@balk.dk
-
Måløv Hovedgade 95 stikvej i Målø
Udskiftning af bund og belægningen på stikvejen til Måløvhovedgade 95.
Tidsplan
Uge 49 - 52
Tidsplanen er kun vejledende, og der er forbehold for evt. ændringer. Er vejret dårligt i anlægsperioden, kan arbejdet blive forsinket.
Entreprenør
Gundsø
Spørgsmål til arbejdet?
Projektleder: Fadi Chheiber
E-mail: fchh@balk.dk
-

I forbindelse med konstateret vandindtrængning i kælderen i Børnehuset Kærlodden har Ballerup kommune fået udført en undersøgelse af børnehusets eksisterende kloak, afløbs- og drænsystem.
Undersøgelsen viste en del problematikker med det eksisterende kloak, afløbs- og drænsystem. Derfor igangsætter vi arbejder med at rette op de fejl og skader, som undersøgelsen har klarlagt på de eksisterende installationer under terræn.
Det betyder, at der vil være en del gravearbejde på børnehusets matrikel i en til to etaper for at udbedre de eksisterende installationer. Imellem etape 1 og den mulige etape 2 vil der være en periode på tre måneder, hvor vi undersøger, om udbedringerne er tilstrækkelige, eller om vi skal igangsætte etape 2. Læs mere om etaperne nedenfor.
Etape 1
Her vil vi renovere og reparere ødelagte og tilstoppede afløbsledninger, kloak samt udskifte brønde.
Gravearbejdet vil foregå i mindre delområder, så det stadig er muligt at færdes relativt ugeneret på grunden.
Børnenes og brugernes sikkerhed er førsteprioritet i forbindelse med udførelsen af arbejdet, og der vil derfor blive spærret af med byggepladshegn og afmærkning, så det er tydeligt, hvor børnene må færdes. Bemærk, at arbejdet i perioder kan støje en smule.
Analyse af udbedring
I cirka tre måneder observerer og undersøger vi, om udbedringerne af det eksisterende kloak, afløbs- og drænsystem har haft den ønskede virkning.
Etape 2
Vi igangsætter kun etape 2, hvis udbedringerne i etape 1 ikke har haft den ønskede virkning. I så fald etablerer vi dræn i kælderen. Dette arbejde bliver udført i indendørs i kælderen, og her kan der være perioder med støj, når der bankes hul i det eksisterende kældergulv.
TidsplanEtape 1, som løber fra slutningen af april 2026 til medio juni 2026.
Analyse af udbedringer fra medio juni 2026 til primo oktober 2026.
Etape 2, som forventes igangsat primo oktober 2026 og afsluttet medio november 2026.
Bygherre
Ballerup Kommune, Center for EjendommeEntreprenør
Entreprenørfirmaet Bo Hansen ApSSpørgsmål til projektet
Kontakt projektleder André Vallinas på anva@balk.dk, hvis du har spørgsmål til projektet. -
På Ballerup Boulevard ved parkeringen mod Lilletoften åbnes støjskærm så der er adgang til og fra stisystemet til parkeringspladsen.
Åbningen af støjskærmen bliver lavet ved at der sættes et nyt, lidt længere, stykke støjskærm foran åbningen så støjen stadig bliver forhindret.
Parkering på strækningen er reduceret i perioden.
Tidsplan: 28.januar - 30. Februar 2026
Bygherre:
Ballerup KommuneEntreprenør:
Nordkysten A/SSpørgsmål til arbejdet:
Projektleder Michael Gärtner Nielsen
mic4@balk.dk
2328 8134 -
Asfaltering af grus belægningen på stikvejen til Harrestrupvej nr. 165.
Tidsplan
Uge 49 - 52
Tidsplanen er kun vejledende, og der er forbehold for evt. ændringer. Er vejret dårligt i anlægsperioden, kan arbejdet blive forsinket.
Entreprenør
Gundsø
Spørgsmål til arbejdet?
Projektleder: Fadi Chheiber
E-mail: fchh@balk.dk
-
Rampen og trappen er anlagt, samt en del af beplantningen.
Der er dog problemer med at få belysningen til at virke.
På nuværende tidspunkt ser det ud til at samtlige master og pullerter evt. skal udskiftes før det kan komme til at virke.
Der arbejdes på en løsning med vores entreprenør.
Vi beklager meget at lyset mangler, især i den her mørke tid.
Bygherre: Ballerup Kommune
Spørgsmål til arbejdet kan rettes til projektleder Michael Gärtner Nielsen, mail mic4@balk.dk; tlf. 2328 8134
-
Arbejdet med at binde det nye Skovlunde bymidte nord sammen med bymidte syd via tunnelen under Ballerup Boulevard fortsætter.
Projektet har til formål at skabe en sikker, tryg og tilgængelig (handicapvenlig) forbindelse mellem de to dele af Skovlunde.
Der er indtil videre gennemført to etaper, og nu starter den 3. etape.
Etape 3 kommer primært til at bestå i at bygge elevatoren på nordsiden af boulevarden, men der er også mange ting ved trappen der bliver lavet færdig sideløbende med elevatorarbejdet
Elevator, håndlister og belysning bliver færdiggjort fra påske 2026 til efter sommerferien.
Det vil stadig være muligt at passere, selvom der vil være noget afspærring, der reducere bredden af tunnelen.
Vi beklager generne undervejs.
Tidsplan for anlæg etape 3:
7. April – 7. August 2026Bygherre
Ballerup KommuneRådgiver
Artelia A/SEntreprenør
JP Råhus ApSSpørgsmål til projektet kan rettes til:
Projektleder Michael Gärtner Nielsen
MIC4@balk.dk -
Asfaltarbejde på Ejbyvej – vejen lukkes midlertidigt
Vi gør opmærksom på, at der udføres asfaltarbejde på Ejbyvej i perioden torsdag den 31. juli til og med fredag den 15. august.
Arbejdet omfatter udskiftning af asfaltbelægningen på strækningen mellem Ejbyvej 111 (Hønsebyen) og kommunegrænsen ved Glostrup. Arbejdet vil foregå i hverdage mellem kl. 7:00 til kl. 18:00.
I dette tidsrum vil Ejbyvej være spærret for al trafik. Det vil dog være muligt at køre til- og fra Ejbyvej 111 (Hønsebyen) fra nordlige retning.
Uden for arbejdstiden vil vejen være åben for trafik som normalt.
Vi gør opmærksom på, at der vil blive opsat afspærringer i den pågældende periode, i begge sider af vejen. Der opsættes omkørselspile for alternativ rute.

Støj
Arbejdet vil desværre medføre støj. Vi bestræber os dog på at begrænse generne mest muligt gennem valg af støjsvagt materiel og hensigtsmæssig arbejdsgang. Vi beklager de gener, arbejdet måtte medføre.
Tidsplan
Tidsplanen er vejledende og kan ændre sig undervejs. For eksempel kan dårligt vejr i anlægsperioden forsinke arbejdet.
Om vej- og asfaltarbejdet
Evt. opdateringer og ændringer til vejarbejdet findes på ”Aktuelle byggepladser og vejarbejder” på vores hjemmeside via dette link: www.ballerup.dk/byggepladser
Entreprenør
Peab Asfalt A/S
Har du spørgsmål, er du velkommen til at kontakte os
Projektleder: Fadi Chheiber
E-mail: fchh@balk.dk
-

Vi har i april måned igangsat renoveringen af Annavej 6, som er en villa, der fremadrettet skal danne rammerne for leg og udvikling for dagplejernes børn i området. Huset ombygges således, at det indrettes med to rummelige gruppe-/flexrum, kontor samt gode pusle- og toiletfaciliteter og børnegarderober. På ejendommens udendørsarealer etablerer vi et rigt læringsmiljø for børnene i form af en legeplads med gynger, rutsjebane, solafskærmet sandkasse og opholdsarealer.
Vi forventer kun få støjgener i forbindelse med nedrivningsarbejdet, og eventuelle gener vil blive forsøgt minimeret.
Påvirkning af trafikale forhold
Der vil være få større leverancer af materialer, der periodevist kan påvirke trafikken lokalt på Annavej.Forventet tidsplan
Renovering er opstartet medio april og forventes afsluttet ved udgangen af 2026.Bygherre
Ballerup KommuneEntreprenør
INTERN A/S, CVR: 20284072Spørgsmål til projektet
Kontakt projektleder Jonas Lodberg Lund på mail joll@balk.dk, hvis du har spørgsmål til projektet. -
Som led i projektet ”Ombygning af Bybuen” udlægges der nyt slidlag på både kørebane og cykelsti.
Arbejdet udføres som natarbejde, da det kræver total afspærring af hele Bybuen mellem Ballerup Boulevard og Torvevej.
Arbejdet forventes udført i følgende nætter i uge 18:
- Nat 1: Tirsdag den 28. april kl. 22:00 – Onsdag den 29. april kl. 07:00
- Nat 2: Onsdag den 29. april kl. 22:00 – Torsdag den 30. april kl. 07:00
- Nat 3: Torsdag den 30. april kl. 22:00 – Fredag den 1. maj kl. 07:00
Beboere, der bor ud til eller tæt på Bybuen, vil modtage særskilt information fra entreprenøren senest to uger før opstart af natarbejdet.
Hvis vejret ikke tillader udlægning af slidlaget på de planlagte datoer, og vi derfor ikke kan sikre den nødvendige vedhæftning og kvalitet, vil slidlagsarbejdet blive udskudt til andet tidspunkt.
Baggrund for projektet
Ombygningen af Bybuen er en del af udviklingen af Skovlunde Bymidte – Nord.
Projektet omfatter etablering af:
- Enkeltrettede cykelstier på begge sider af vejen
- Nye fortove og overkørsler
- Hastighedsdæmpende foranstaltninger (en hævet flade og to bump)
- Ny beplantning
- Renoveret vejbelysning
- Ny asfaltbelægning
Arbejdet blev igangsat den 22. april 2025 og afsluttet den 24. november 2025. Nu resterer asfaltarbejdet, som ikke kunne udføres ultimo 2025 grundet vejrforholdene.
Vi beklager de gener, som dette arbejde medfører, og håber på jeres tålmodighed og forståelse.
Vil du vide mere?
Du er velkommen til at kontakte projektleder i Ballerup Kommune, Wael El-Mahmoud, på e-mail waee@balk.dk.
-

Vi er begyndt at renovere børnehuset Villa Kulla. Blandt andet ombygger vi de eksisterende grupperum, så de i højere grad kan favne de børnegrupper, der i dag og fremover skal benytte børnehuset. I samme omgang indretter vi en række toiletrum mere hensigtsmæssigt og istandsætter dem til en nutidig standard.
I 2025 blev der fundet en forekomst af skimmel i børnehusets krybekælder. Det medfører en nødvendig renovering, hvor vi fylder krybekælderen op og laver en ny opbygning af dæk og gulve. Det gør vi for at sikre bedst muligt mod, at der igen opstår råd eller skimmel. Samtidig etablerer vi i rummet gulvvarme, som giver et bedre indeklima for vuggestuebørnene.
Der vil under arbejdet fortsat være afsat et mindre antal parkeringspladser til brug for entreprenørens håndværkere og materiale-leverancer.
Tidsplan
Efter en periode med yderligere bygningsundersøgelser satte vi byggeriet i gang igen i oktober 2025. VI forventer renoveringen er afsluttet i sommeren 2026.Bygherre
Ballerup KommuneEntreprenør
Bela-Byg A/SSpørgsmål til arbejdet
Projektleder André Vallinas
Mail: anva@balk.dk -
Der bliver udrullet fjernvarme i Skovlunde.

Fase 1 går i gang den 1. april 2025 og vedrører Åbyvej, fra Ballerup Boulevard til Ejbyvej – inkl. alle sideveje til Åbyvej. Denne fase inkluderer ligeledes hjørnet af Lundebjerg (mod Ballerup Boulevard), samt selve Ballerup Boulevard mellem Lundebjerg og Torvevej.
Arbejdet vil medføre trafikale gener med sig, såsom dårligere adgangsforhold for borgere og bilister, ensretning af Åbyvej, samt spærring af hhv. indkørslen og udkørslen til Lundebjerg i enkelte perioder, med omkørsler til følge. Desuden spærring af Ballerup Boulevard i en weekend, på strækningen mellem Torvevej og Lundebjerg. Der vil blive skiltet med infotavler inden arbejderne igangsættes.
Anden fase forventes at blive igangsat 1. august 2025 og vedrører den sydlige del af ”Viften”.
Tredje fase forventes at blive igangsat 1. oktober 2025 og vedrører resten af ”Viften” inkl. Gl. Skovlunde.
Busomlægninger
Samtidigt med at der udlægges fjernvarme i Skovlunde, ombygger Ballerup Kommune Bybuen i perioden 22. april 2025 – 14. november 2025 (du kan læse mere om dette projekt her: https://ballerup.dk/byggepladser), hvorved busomlægningerne i de to anlægsprojekter er koordineret i tre etaper, som beskrevet nedenfor:
Etape 1: Blev færdig gjort i april.
Etape 2: Blev færdig gjort i august.
Etape 3a: Mandag den 25. august kl. 07 - Søndag den 12. oktober.
Bybuen spærres ved Skovlunde Torv og der oprettes et midlertidigt busstoppested på Torvevej som erstatning for Skovlunde st.
Linje 142 omlægges, så den i retning mod Skovlunde st. fortsætter ad Ballerup Boulevard - Lundebjerg - Lundebjerggårdsvej - midlertidigt stoppested
Linje 145 kører normal rute, der starter og slutter ved det midlertidige stoppested ved Skovlunde st.
Linje 834 omlægges, så den kører fra det midlertidige stoppested - Torvevej - Ballerup Boulevard - Lilletoften - tv. ad Lilletoften og videre ad normal rute.
Etape 3b: Mandag den 13. oktober – Tirsdag den 4. november kl. 10.
Bybuen spærres ved Skovlunde Torv og der oprettes et midlertidigt busstoppested på Torvevej som erstatning for Skovlunde st., samtidig arbejdes der med fjernvarmen dels på den sydlige del af Tangevej, dels på Åbyvej mellem Dyrehegnet og Ballerup Boulevard.
- Linje 142 omlægges, så den i retning mod Skovlunde st. fortsætter ad Ballerup Boulevard - Lundebjerg - Lundebjerggårdsvej - midlertidigt stoppested
- Linje 145 kører normal rute frem til rundkørslen ved Dyrehegnet, hvorefter den køre Dyrehegnet – Ballerup Boulevard – Lundebjerg og videre ad normal rute til det midlertidige stoppested ved Skovlunde st. Der vil blive oprettet et midlertidigt stoppested på Dyrehegnet tæt ved Åbyvej, som erstatter stoppestedet Dyrehegnet/Åbyvej
- Linje 834 omlægges, så den kører fra Tangevej – Hybenvænget – Ejbyvej – Åbyvej - Dyrehegnet – Ballerup Boulevard- Lundebjerg videre ad normal rute i Pigekvarteret til det midlertidige stoppested ved Skovlunde st. Herfra kører den videre ad Torvevej - Ballerup Boulevard - Lilletoften - tv. ad Lilletoften og videre ad normal rute. Grundet broarbejde ved Rugvænget kører servicebussen den modsatte vej rundt i Vængerne, således at der køres Rugvænget – Bygvænget - Kornvænget
Etape 3b: Tirsdag den 4. november - mandag den 24. november kl. 18.
Bybuen spærres ved Skovlunde Torv og der oprettes et midlertidigt busstoppested på Torvevej som erstatning for Skovlunde st., samtidig med at der arbejdes med fjernvarmen på den sydlige del af Tangevej, Åbyvej mellem Melbyvej og Dræbyvej (indtil 18.11) og Ejbyvej mellem Hasselvej og Åbyvej
- Linje 142 omlægges, så den i retning mod Skovlunde st. fortsætter ad Ballerup Boulevard - Lundebjerg - Lundebjerggårdsvej - midlertidigt stoppested
- Linje 145 kører normal rute frem til Hybenvænget, hvorfra den uden stop kører Hybenvænget – Harrestrupvej – Ballerup Boulevard frem til Lundebjerggårdsvej, hvor den fortsætter sin normale rute, der starter og slutter ved det midlertidige stoppested ved Skovlunde st.
- Linje 834 omlægges, så den kører fra Tangevej – Hybenvænget – Ejbyvej – Bybjergvej – Ballerup Boulevard - Lundebjerggårdsvej – Lundebjerg – Torvevej – Marievej - Dagmarvej og videre ad normal rute til det det midlertidige stoppested ved Skovlunde st. Herfra kører den videre ad Torvevej - Ballerup Boulevard - Lilletoften - tv. ad Lilletoften og videre ad normal rute. Grundet broarbejde ved Rugvænget kører servicebussen den modsatte vej rundt i Vængerne, således at der køres Rugvænget – Bygvænget - Kornvænget
Etape 3b: Mandag den 24. november kl. 18 – Fredag den 12. december kl. 18.
Arbejdet på Bybuen er afsluttet, og busserne kan igen holde på stationsforpladsen ved Skovlunde st. Samtidig arbejdes der fortsat med fjernvarmen på den sydlige del af Tangevej og Ejbyvej mellem Hasselvej og Åbyvej
- Linje 145 kører normal rute frem til Hybenvænget, hvorfra den uden stop kører Hybenvænget – Harrestrupvej – Ballerup Boulevard frem til Lundebjerggårdsvej og videre ad normal rute til Skovlunde st.
- Linje 834 omlægges, så den kører fra Tangevej – Hybenvænget – Ejbyvej – Bybjergvej – Ballerup Boulevard - Lundebjerggårdsvej – Lundebjerg – Torvevej – Marievej - Dagmarvej og videre ad normal rute mod Ballerup. Grundet broarbejde ved Rugvænget kører servicebussen den modsatte vej rundt i Vængerne, således at der køres Rugvænget – Bygvænget – Kornvænget
Tidsplan:
Du kan følge med i status på gravearbejdet på de enkelte veje, på Vestforbrændingens gravekort via dette link.
Bygherre:
Vestforbrænding
Entreprenør:
MJ Eriksson
Vil du vide mere:Du kan finde mere information om fjernvarmeudrulningen i Ballerup Kommune på Ballerup Kommunes hjemmeside, her: https://ballerup.dk/fjernvarme, eller på Vestforbrændingens hjemmeside, Link
Spørgsmål til arbejdet kan rettes til:
For spørgsmål til gravearbejdet generelt: Kontakt Vestforbrændingens entreprenør, MJ Eriksson A/S, på tlf. nr. 53 56 83 41.
For generelle spørgsmål vedr. fjernvarmeudrulning i Ballerup Kommune: Kontakt Vestforbrændingen på mail kundeservice@vestfor.dk eller på tlf. nr. 70257060.
-
For at øge tilgængeligheden for gangbesværede og kørestolsbrugere etableres der elevatorlift fra stue- til kælderetage i Skovlundehallens foyer.
Det vil være muligt at gå igennem foyeren til hallen og Skovlunde Skole afd. Lundebjergs samlingssal i byggeperioden.
Det vil ikke være muligt at benytte trappen i foyeren i byggeperioden. Der henvises til hallens øvrige trapper.
To af hallens parkeringspladser inddrages til byggeplads i perioden.
Forventet tidsplan
Fra slutningen af marts 2026 til slutningen af juni 2026.Bygherre
Ballerup Kommune, Center for EjendommeEntreprenør
Fischer Gruppen A/SSpørgsmål til projektet
Kontakt Center for Ejendomme, projektleder Lina Behrens lbeh@balk.dk -
Nyt fællesrum etableres i lokalet, hvor der før har været svømmebad. I forbindelse med fællesrummet vil der også blive etableret et køkken, handicaptoilet samt depotrum. I etagen under fællesrummet vil fællesarealet foran kioskudsalget blive renoveret med nye lofter og gulve.
Adresse: Lundebjerg 72, 2740 Skovlunde
Tidsplan
Ultimo februar – august 2025Bygherre
Ballerup KommuneEntreprenør
Skou Gruppen
CVR: 26 65 46 53Spørgsmål til arbejdet kan rettes til:
Projektleder Anne Marie Jørgensen
ajr1@balk.dk